本物件は入居が決まりました。たくさんのお問合せを頂きありがとうございます。この物件の条件に近い物件情報をご希望される方には、類似情報が出た際にご連絡を差し上げます。下記問合せフォームの「ご要望スペース」に「類似情報希望」とご記入の上、お送りください。
目次
旗竿敷地とは・・・?
こちらの区画図の2号地と3号地の土地を言います。入り口の部分が竿、建物が建っている部分が旗のようになっているから、そう言われています。土地の区画割のときにどうしてもできてしまいます。
飯田産業グループが建てられている建売住宅です。
考えられるデメリット
①日当り、風通しがよくない。
②道路から奥まった場所にあるため防犯上あまりよくない。
③四方を家に囲まれてしまう。
④買い替えの時、売りにくい。
⑤土地の出入り部が固定されているため、間取りが制限されてしまう。
⑥建て替える時、その形ゆえ、建築業者が嫌がる場合がある。
やはり冷静になって調べてみると、ちょっと臆してしまうデメリットがあります。
さて、デメリットばかりでもなく当然メリットもあります。
メリットとは・・・?
①比較的安く購入できる。
②目の前が道路ではないため子供が安心。
③土地の評価額が安い=固定資産税が安い。
④奥まったところにあるため比較的静か。
⑤駐車場スペースは独自に設けている。
意外とメリットはあるものです。やはり価格が安いのと道路に面していないため静かなのは魅力的であります。
とあるお客様のご希望に当てはめてみました!
①駅から10分以内の立地
→クリア!ゆっくり歩いても6分ぐらい
②車が2台止められる
→3号地は余裕のクリアです!
③小学校が近いこと
→約970mです。私が歩けば12分程度。小学生の歩幅だと17分くらいでしょうか
④静かなところ
→奥まったところにあるためクリア!
→これも余裕のクリアです!ちなみに、現地のぼり旗の仲介業者さんは、仲介手数料が必要なところが多いです。
という結果になりました。
価格の安い物件には、必ず安い理由があります。
その理由をきちんとわかった上で、「自分たちにとって、それは特にデメリットではないな」と思える物件があなたにとっての掘り出し物の土地です。
家を含めて総合的に考えるようにすると自分たちにとっての掘り出し物を見つけることができるかもしれません。
気になる物件を見つけたら、不動産の専門家に相談するのが良いですよ。
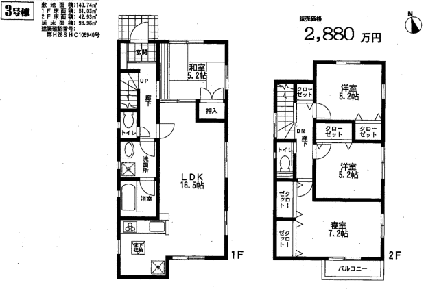
こちらの現場は1号地から売れていくと思いますけど、3000万円を超えていますしね・・・。
まぁそんなにすぐ売れないとは思いますけど・・・?
※こちらの物件情報は平成28年7月14日現在のものです。万一売却済の場合はご容赦下さい。
(8月26日現在2号地は成約済になりました。残る1号地は2,980万円、2号地は2,780万円に価格改定されました。)
※10月3日価格再見直し:1号地/2,780万円 2号地/2,680万円になりました。
この物件へのお問い合せ
※は入力必須項目です。






















