目次
「くずはタワーシティ」のご相談は仲介手数料がお得なマルワホームへどうぞ。
「くずはタワーシティ」は、沿線最大級の再開発プロジェクトとして平成15年に誕生しました。総戸数488戸の規模で生まれ変わったショッピングモールに隣接した新世紀の「まちづくりプロジェクト」の象徴的なマンション街区になっています。
「くずはタワーシティ」は、その敷地内に最高高さ133.8m、地上41階のタワー棟を含め、24階A棟・13階B棟・11階建C棟の4棟と、4階建F棟(フィットネス)がリズミカルに、しかも高い居住性を確保する南面に配棟されています。
「くずはタワーシティ」は、100年コンクリートといわれる高強度・高耐久の躯体や、予期できない地震などにも対策を講じた免震装置の設置という、建物の耐久性能追及がされています。親・子・孫の三世代に受け継がれる永住100年住宅のマンションとして建てられています。
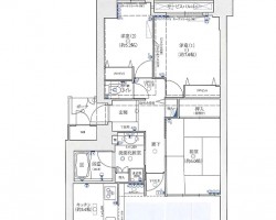
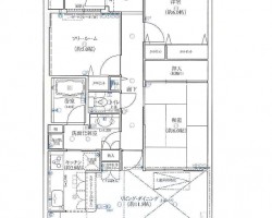
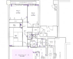
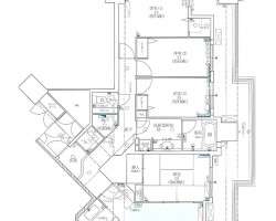
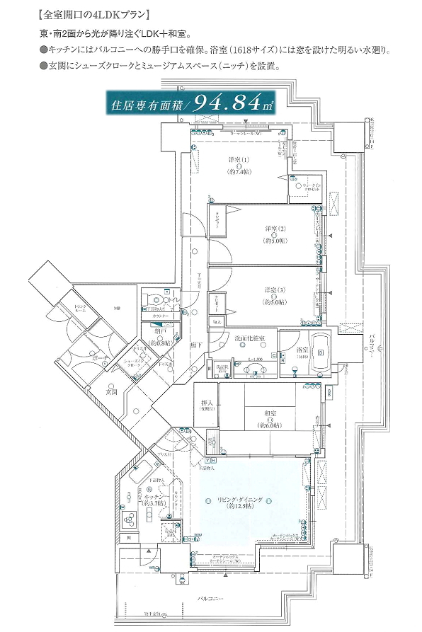
A棟の主な間取り図面集
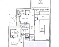
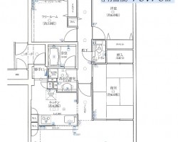
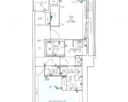
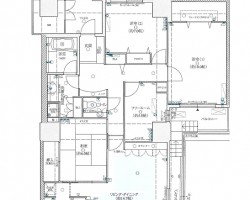
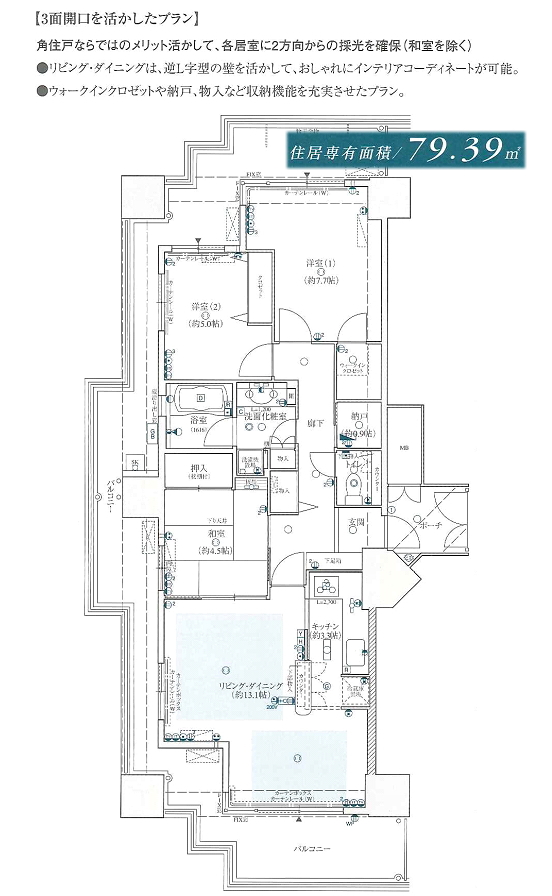
B棟の主な間取り図面集
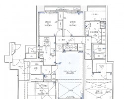
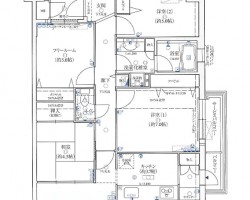
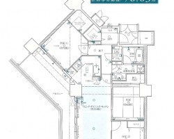
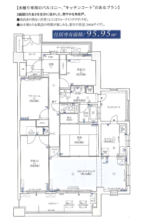
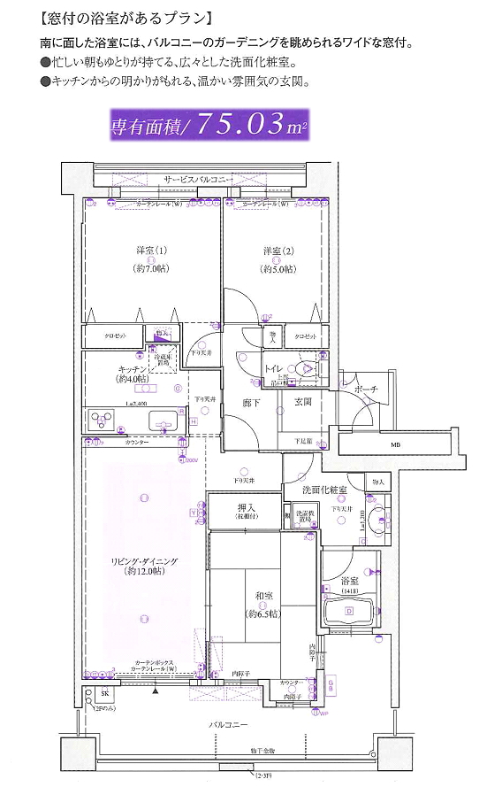
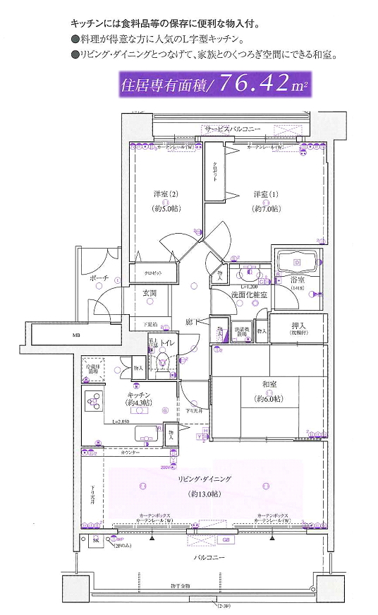
C棟の主な間取り図面集
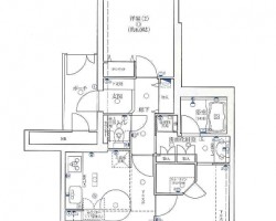
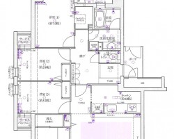
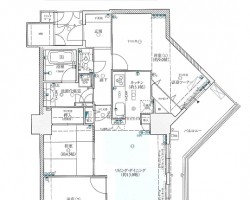
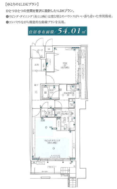
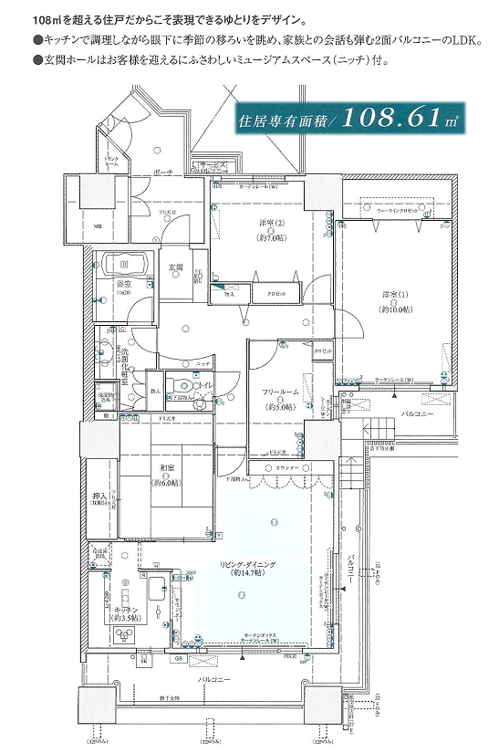
T棟の主な間取り図面集
多世代が混住できるバラエティー豊かな附帯施設の数々
- プレイロット 「砂場や木製遊具を備えています。」
- キッズステーション 「小さなお子様を預けることができる有料保育施設」
- パーティールーム 「隣室にキッチンスタジアムも併設されています。」
- バーベキューテラス 「パーティールームと一体になったガーデンパーティーもできます。」
- AVルーム 「DVD対応の大画面スクリーンの臨場感を体験できます。」
- スカイラウンジ「T棟33階にはタワー棟ならではのスカイラウンジがあり昼と夜の眺望を楽しめます。」
- ゲストルーム 「展望風呂やサウナが設置されています。」
- 姿勢&スポーツクラブ ビッグ・エスくずは 「あなたの健康づくりをサポートしています。」
全体の物件概要
| 所在地 | 枚方市楠葉並木2丁目 | 総戸数 | 488 戸 |
| 交通 | 京阪本線/樟葉駅徒歩4分 | 駐車場 | 7,000円~/月 |
| 専有面積 | 54.01m²~136.02㎡ | 管理方式/ 管理会社 |
全部委託/京阪カインド株式会社 |
| 構造 |
RC造41階地下1階建
|
新築時売主 | 京阪電気鉄道(株) |
| 間取り |
1LDK~5LDK
|
施工会社 | (株)竹中工務店、京阪建設(株) |
| 築年数 | 2003年11月 | 設計会社 | (株)竹中工務店 |
各棟の概要と現在の売り出し状況
| 棟 | T棟 |
| 構造 | RC造・地上41階地下1階建 |
| 戸数 | 273戸 |
| 売り出し中物件(平成30年7月20日現在1室) | 32階部分(仲介手数料無料)
35階部分(詳細はメールにて送付中です。) |
| 棟 | A棟 |
| 構造 | RC造・地上24階建 |
| 戸数 | 112戸 |
| 売り出し中物件(平成30年7月20日現在0室) |
| 棟 | B棟 |
| 構造 | RC造・地上13階地下1階建 |
| 戸数 | 56戸 |
| 売り出し中物件(平成30年7月20日現在0室) |
| 棟 | C棟 |
| 構造 | RC造・地上11階建 |
| 戸数 | 47戸 |
| 売り出し中物件(平成30年7月20日現在0室) |
周辺施設のご紹介 暮らしのすべてが徒歩圏内です。
ショッピング施設
・くずはモール街・・・・・・・・・・・・徒歩1分
・ローソン 南楠葉店・・・・・・・・・・徒歩1分
・生鮮食品館 トップワールド 楠葉店・・徒歩2分
・イズミヤ くずは店・・・・・・・・・・徒歩2分
・ダイエーくずは ショパーズプラザ・・・徒歩2分
・レンタルビデオ・CD TSUTAYA・徒歩3分
・セブンイレブン アクアくずは店・・・・徒歩4分
・ホームセンター ウッドペッカー・・・・徒歩5分
・おおさかパルコープ 楠葉店・・・・・・徒歩5分
・ミドリ電化 くずは店・・・・・・・・・徒歩6分
医療施設
・男山病院・・・・・・・・・・・・・・・徒歩16分
・加藤病院・・・・・・・・・・・・・・・徒歩1分
・村上歯科クリニック・・・・・・・・・・徒歩1分
・蔦田歯科・・・・・・・・・・・・・・・徒歩1分
・谷口内科・・・・・・・・・・・・・・・徒歩1分
・喜多歯科医院・・・・・・・・・・・・・徒歩2分
・三好耳鼻咽喉科・・・・・・・・・・・・徒歩2分
・村岡整形外科・皮膚科・・・・・・・・・徒歩2分
・竹広内科・・・・・・・・・・・・・・・徒歩3分
・高木皮膚科・泌尿器科・・・・・・・・・徒歩3分
・岡田眼科医院・・・・・・・・・・・・・徒歩3分
・井端耳鼻咽喉科・・・・・・・・・・・・徒歩3分
・川口クリニック・・・・・・・・・・・・徒歩3分
・竹安歯科・・・・・・・・・・・・・・・徒歩3分
・平沢小児科・・・・・・・・・・・・・・徒歩3分
・おくの歯科医院・・・・・・・・・・・・徒歩4分
・きたの整形外科・・・・・・・・・・・・徒歩4分
・田中内科医院・・・・・・・・・・・・・徒歩4分
・小林歯科・・・・・・・・・・・・・・・徒歩4分
・山本歯科・・・・・・・・・・・・・・・徒歩4分
・増田歯科医院・・・・・・・・・・・・・徒歩5分
・はいはら歯科・・・・・・・・・・・・・徒歩5分
・野々村小児歯科クリニック・・・・・・・徒歩5分
・永島クリニック・・・・・・・・・・・・徒歩5分
・谷村内科医院・・・・・・・・・・・・・徒歩5分
・野村皮膚科・泌尿器科・・・・・・・・・徒歩5分
・宮本歯科・・・・・・・・・・・・・・・徒歩5分
・三戸内科医院・・・・・・・・・・・・・徒歩6分
・中島外科・胃腸科・・・・・・・・・・・徒歩6分
・折野産婦人科・・・・・・・・・・・・・徒歩7分
・田原耳鼻咽喉科・・・・・・・・・・・・徒歩7分
・熊坂歯科医院・・・・・・・・・・・・・徒歩7分
・てるばやし眼科・・・・・・・・・・・・徒歩7分
・西村小児科医院・・・・・・・・・・・・徒歩7分
・たかぶち内科医院・・・・・・・・・・・徒歩7分
・土井外科・・・・・・・・・・・・・・・徒歩7分
・田川医院・・・・・・・・・・・・・・・徒歩9分
・石塚医院・・・・・・・・・・・・・・・徒歩11分
金融機関
・京都信用金庫 くずは支店・・・・・・・徒歩3分
・三井住友銀行 くずは支店・・・・・・・徒歩8分
・京都銀行 くずは支店・・・・・・・・・徒歩10分
・三菱東京UFJ銀行 くずは支店・・・・徒歩11分
・枚方信用金庫 くずは支店・・・・・・・徒歩4分
教育施設
・私立保育所チャイルドルーム・ヒナ・・・徒歩1分
・市立楠葉野保育所・・・・・・・・・・・徒歩2分
・私立くずはローズ幼稚園・・・・・・・・徒歩2分
・私立楠葉保育所・・・・・・・・・・・・徒歩7分
・私立くずは幼稚園・・・・・・・・・・・徒歩8分
・私立くずはあけぼの保育園・・・・・・・徒歩10分
・私立くずはあけぼの保育園・・・・・・・徒歩10分
・私立くずは光の子保育園・・・・・・・・徒歩12分
・市立樟葉幼稚園・・・・・・・・・・・・徒歩12分
・市立楠葉南幼稚園・・・・・・・・・・・徒歩13分
・市立樟葉西小学校・・・・・・・・・・・徒歩13分
・市立楠葉西中学校・・・・・・・・・・・徒歩13分
・府立牧野高等学校・・・・・・・・・・・徒歩21分
公共・文化施設
・枚方楠葉並木郵便局・・・・・・・・・・徒歩1分
・枚方東消防署 楠葉出張所・・・・・・・徒歩2分
・市立楠葉図書館・公民館・・・・・・・・徒歩2分
・枚方警察署 楠葉交番・・・・・・・・・徒歩4分
・枚方北郵便局・・・・・・・・・・・・・徒歩27分
・枚方市役所 北部支所・・・・・・・・・徒歩2分
公園・スポーツ・レジャー施設
・楠葉中央公園・・・・・・・・・・・・・徒歩1分
・下田公園・・・・・・・・・・・・・・・徒歩5分
・二の宮公園・・・・・・・・・・・・・・徒歩10分
・二ノ宮神社・・・・・・・・・・・・・・徒歩10分
・楠葉東公園・・・・・・・・・・・・・・徒歩12分
・枚方市民の森・・・・・・・・・・・・・徒歩15分
・くずはゴルフ場・・・・・・・・・・・・徒歩5分
・スポーツクラブビッグ・エスくずは・・・徒歩4分
・くずはスイミングクラブ・・・・・・・・徒歩8分
所在地図
※こちらの物件情報は平成30年10月7日現在のものです。万一売却済の場合はご容赦下さい。
※とってもお得な仲介手数料半額でご紹介可能な物件ですので、諸費用を大きく節約できます。
通常の仲介手数料は4,000万円×3%+6万円+消費税=1,360,800円のところ半額の680,400円で680,400円の節約になります。
如何ですか?
お電話一本で、上記金額がお得になる可能性があります。
この物件へのお問い合せ
※は入力必須項目です。





























































